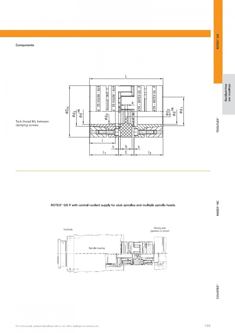
Rotex GS type Rotex GS-P 페이지 정보 작성자 관리자 댓글 0건 조회 1,459회 작성일 19-04-05 21:59 이전글 다음글 목록 본문 Rotex GS-P 목록